Con questo servizio individuerò la migliore soluzione d'arredamento per la tua abitazione in base al budget a tua disposizione

DAMMI UN BUDGET non è un vero e proprio pacchetto, ma un'opzione che potrai applicare ai pacchetti IDEE ARREDAMENTO E RINNOVIAMO CASA con un costo aggiuntivo di soli 30€.

Scegli il pacchetto che preferisci, aggiungi questa opzione ed io sceglierò gli elementi d'arredamento in modo da rispettare i costi da te previsti indicando i negozi, online e non, dove sarà possibile acquistare gli elementi scelti.

Questo servizio non ha scopi pubblicitari e non è legato a nessun negozio specifico. Vuole solo essere un aiuto in più per trovare le migliori offerte e farvi risparmiare tempo e denaro.

Questa opzione è valida solo sull'arredamento e non sulle opere edili.

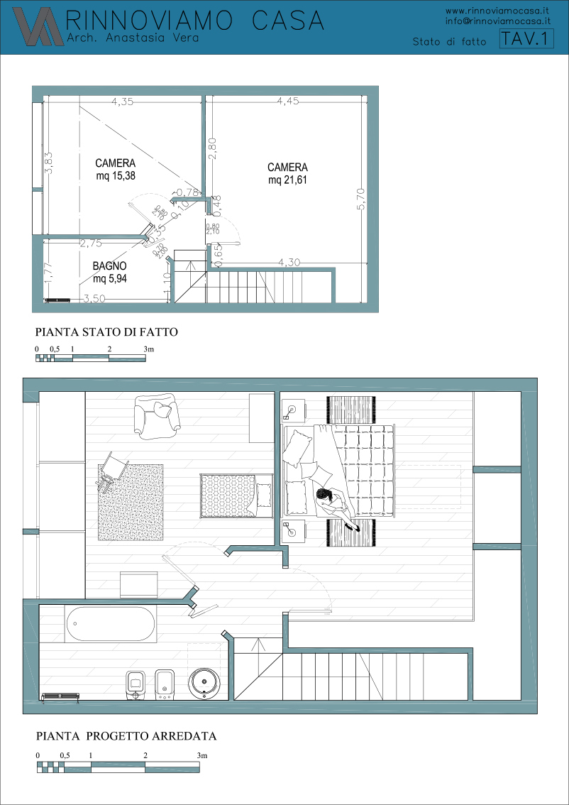
Esempio Pacchetto Verde + Budget (clicca sulle immagini per ingrandirle)

Esempio Pacchetto Verde + Budget Esempio Pacchetto Verde + Budget Esempio Pacchetto Verde + Budget Esempio Pacchetto Verde + Budget Esempio Pacchetto Verde + Budget Esempio Pacchetto Verde + Budget Esempio Pacchetto Verde + Budget Esempio Pacchetto Verde + Budget Esempio Pacchetto Verde + Budget Esempio Pacchetto Verde + Budget

Esempio Pacchetto Blu + Budget (clicca sulle immagini per ingrandirle)

Esempio Pacchetto Blu + Budget Esempio Pacchetto Blu + Budget Esempio Pacchetto Blu + Budget Esempio Pacchetto Blu + Budget Esempio Pacchetto Blu + Budget Esempio Pacchetto Blu + Budget Esempio Pacchetto Blu + Budget Esempio Pacchetto Blu + Budget Esempio Pacchetto Blu + Budget