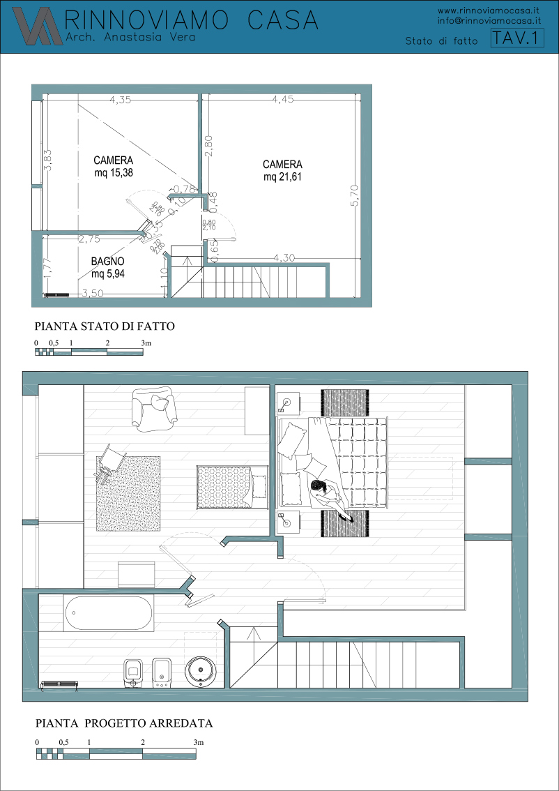
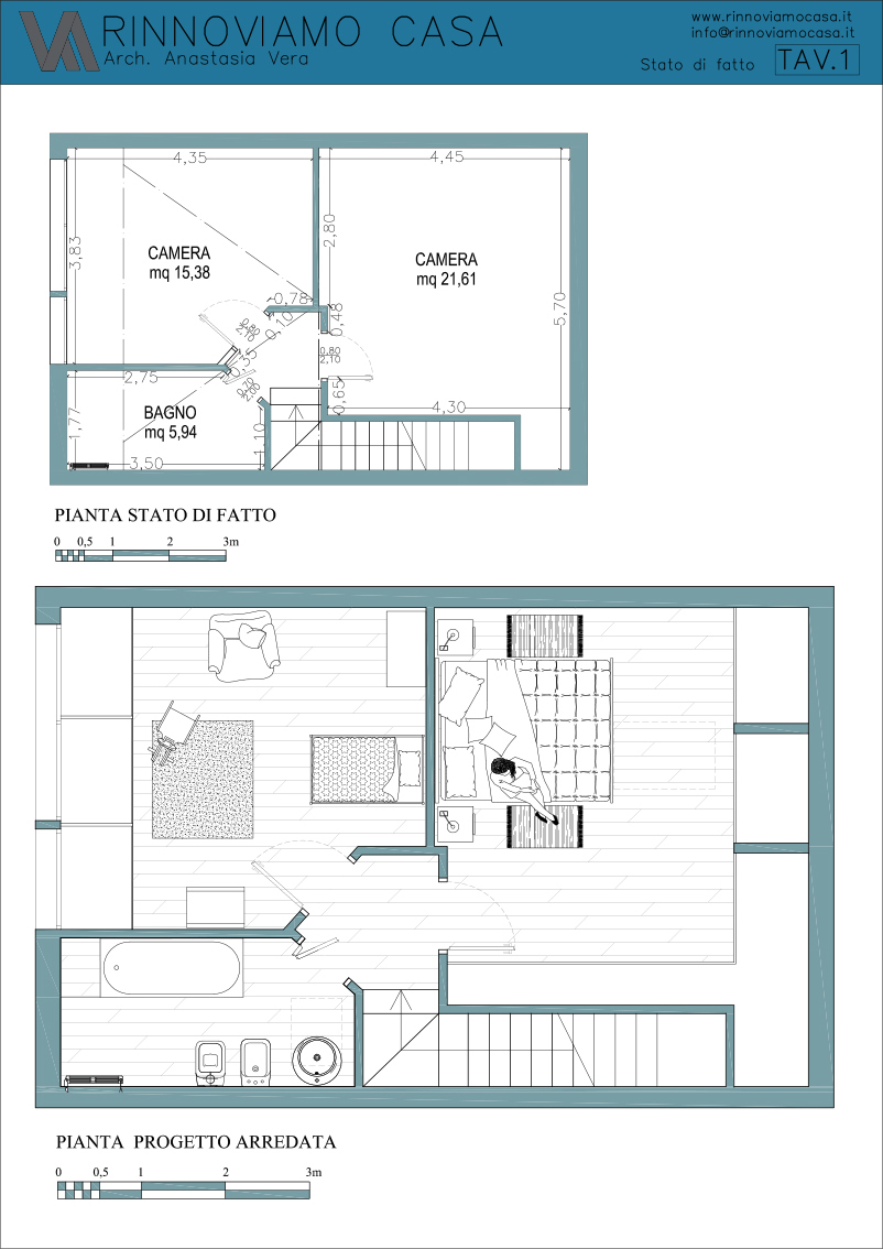
Idee Arredamento
Il pacchetto IDEE ARREDAMENTO ti permetterà di dare nuova vita alla tua casa.
Sceglierò uno ad uno mobili ed accessori più adatti per valorizzare la tua abitazione, in base ai tuoi gusti e alle tue esigenze.
A volte basta davvero poco per ridare vita ad un arredamento che sembra "spento"... Semplicemente spostando alcuni elementi e aggiungendo piccoli dettagli è possibile cambiare aspetto alla tua casa.
Allega le foto, ed indicami quali sono i pezzi d'arredamento che vuoi conservare. Ti mostrerò come valorizzarli al meglio.
Ogni mia idea verrà descritta minuziosamente e sarai contattato via e-mail, o se vorrai anche telefonicamente, per ottenere un progetto sartoriale, pensato su misura per te.
Come funziona?
È veramente semplicissimo, basta seguire questi passaggi:
-
RICHIESTA PROGETTO
Compila il modulo cliente indicando il pacchetto scelto, la tua richiesta ed il materiale disponibile (piante, prospetti,...).
-
ACCETTAZIONE DELLA RICHIESTA
Ti invierò una e-mail di accettazione con la conferma del preventivo e l'elenco delle informazioni necessarie per fornirti un servizio mirato, su misura per te.
-
PAGAMENTO
Dopo aver ricevuto l'e-mail di accettazione sarà possibile effettuare il pagamento tramite bonifico. Se invece si desidera pagare con carta di credito il pagamento è immediato, ma verrà congelato fino al ricevimento del progetto richiesto.
-
INVIO PROGETTO
Riceverai in una prima fase una bozza preliminare. Dopo le eventuali modifiche verrà realizzato il progetto definitivo.
Pagamenti accettati
